3 bedroom FlatFleur De Lys Avenue, Pontllanfraith, Blackwood, NP12 2NU
£110,000
- NO ONWARD CHAIN
- THREE BEDROOMS
- FIRST FLOOR APARTMENT
- MODERN BATHROOM
- CONTEMPORARY KITCHEN
- SPACIOUS LOUNGE
"*" indicates required fields
"*" indicates required fields
** NO ONWARD CHAIN * THREE BEDROOMS * FIRST FLOOR APARTMENT **
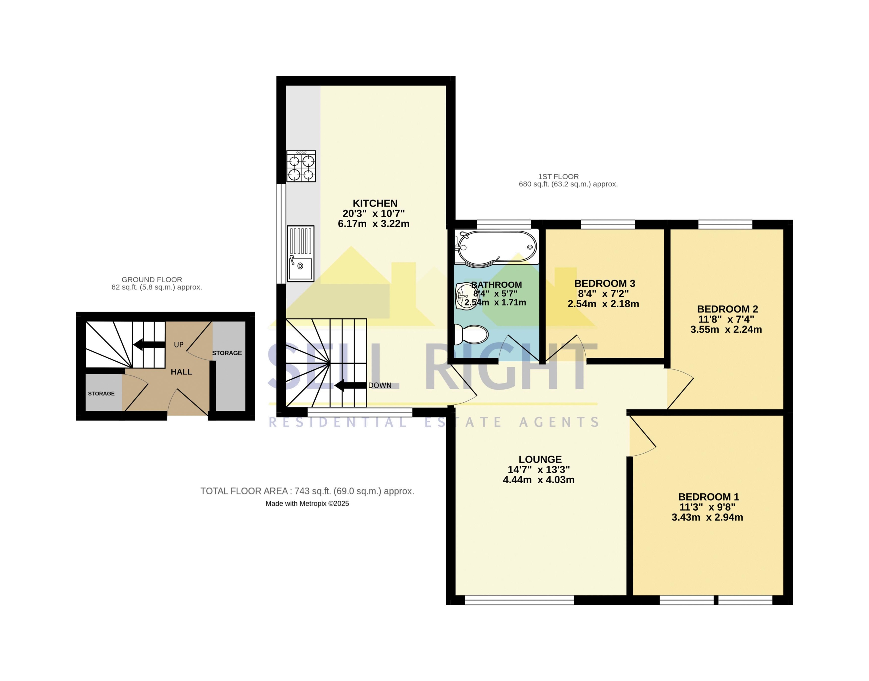
Sell Right Estate Agents are pleased to bring to the market this spacious three bedroom first floor apartment in Blackwood. The property is well situated by being within close proximity local amenities and transport links. The accommodation features an entrance hallway, substantially sized kitchen, spacious lounge, contemporary bathroom and three bedrooms. Externally the property benefits from exclusive use of garden space. Please contact Sell Right Estate Agents to book your viewing on this property.
Tenure: Leasehold
Lease term remining: 999 years
Ground rent: £0 per year
Service charges: £75 per month
Council Tax Band: A
Parking: On Street
Water - Mains feed
Electricity - Mains feed
Sewerage - Connected to public sewer
Heating - Mains fed gas via combi boiler
Broadband Availability Checker - https://checker.ofcom.org.uk/en-gb/broadband-coverage
Mobile Phone Coverage Checker - https://checker.ofcom.org.uk/en-gb/mobile-coverage
Entrance Hallway
UPVC double glazed door to front, plastered walls and ceiling, carpet flooring, doors to storage cupboards, stairs to kitchen.
Kitchen 20' 3'' x 10' 7'' (6.17m x 3.22m)
UPVC double glazed windows to front and side, plastered walls and ceiling, carpet and vinyl flooring, radiator, wall and base units with laminate work tops, stainless steel sink unit with mixer tap, integrated oven and gas hob with over head extractor hood, door to lounge.
Lounge 14' 7'' x 13' 3'' (4.44m x 4.03m)
UPVC double glazed window to front, plastered walls and ceiling, laminate flooring, radiator, doors to bathroom and three bedrooms.
Bathroom 8' 4'' x 5' 7'' (2.54m x 1.71m)
UPVC double glazed window to rear, pvc panelled walls, plastered ceiling, vinyl flooring, radiator, W.C, wash hand basin, panelled bath with over head shower and glass side screen.
Bedroom One 11' 3'' x 9' 8'' (3.43m x 2.94m)
UPVC double glazed window to front, plastered walls and ceiling, laminate flooring, radiator.
Bedroom Two 11' 8'' x 7' 4'' (3.55m x 2.24m)
UPVC double glazed window to rear, plastered walls and ceiling, laminate flooring, radiator.
Bedroom Three 8' 4'' x 7' 2'' (2.54m x 2.18m)
UPVC double glazed window to rear, plastered walls and ceiling, laminate flooring, radiator.
Disclaimer
No statement in these details is to be relied upon as representation of fact, and purchasers should satisfy themselves by inspection or otherwise as to the accuracy of the statements contained within. These details do not constitute any part of any offer or contract. Sell Right and their employees and agents do not have any authority to give warranty or representation whatsoever in respect of this property. These details and all statements herein are provided without any responsibility on the part of Sell Right or the vendors.
Measurements: Sell Right take great care when measuring, but these approximate room sizes are only intended as general guidance. You must verify the dimensions carefully before ordering carpets or any built-in furniture etc.
Services: Sell Right have not tested the services or any of the equipment or appliances in this property, accordingly we strongly advise prospective buyers to commission their own survey or service reports before finalising their offer to purchase.


